$599,900
29 Haggard Cove
Alberni Inlet – Port Alberni, BC
$599,900
29 Haggard Cove
- 4 bedrooms
- 3 bathrooms
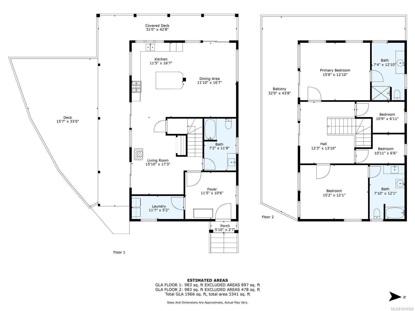
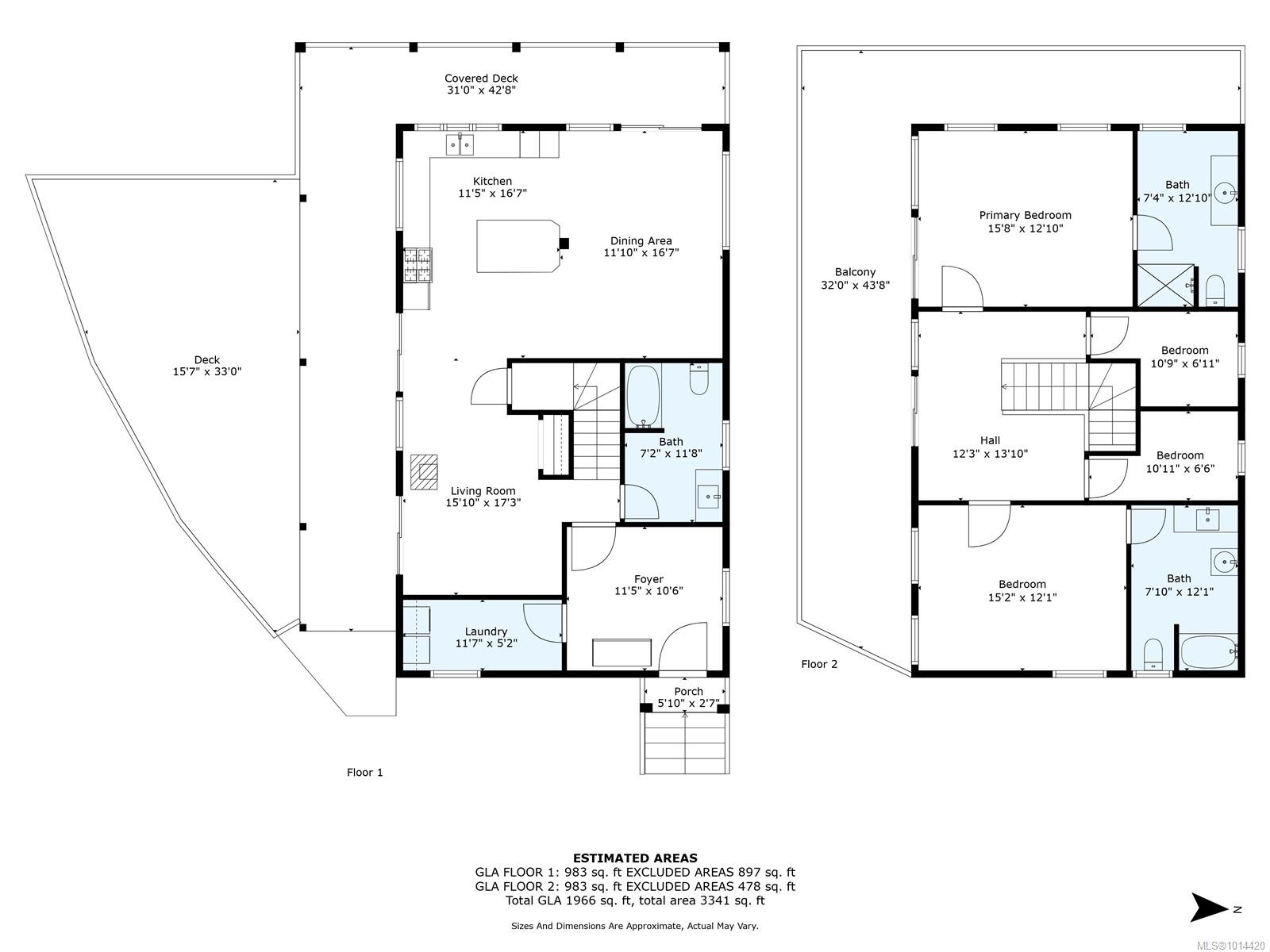
- 1920 sqft
- 16 years old, built in 2010
- Contemporary
- 10,890 sqft lot
- $125 fees
- $1,166 taxes
West Coast Getaway at Haggards Cove! Escape to this stunning waterfront, gated marina community located at the entrance to the Alberni Inlet and Barkley Sound—offering direct access to world-class fishing, kayaking, boating, diving, and outdoor adventure. This custom-built 4-bedroom, 3-bathroom home is crafted with quality and comfort in mind. The open-concept main floor features a spacious kitchen, dining, and living area with 14’ open-beam ceilings, floor-to-ceiling windows, and a cozy wood stove, flowing seamlessly to a large deck with breathtaking ocean and mountain views—perfect for entertaining or summer evenings. Enjoy flexibility and privacy with 2 primary suites, both with private ensuites, plus bunk rooms for guests. Designed for year-round use, the home includes on-demand hot water, a laundry room with washer/dryer, vinyl & slate flooring on the main, cork flooring upstairs, and 6 sliding doors bringing the outdoors in. This property is built for off-grid convenience with a 100 AMP solar power system with power controller, battery storage, and generator backup, Hardiplank exterior, metal roofing, and home-certified septic. Boating made easy with 2 private boat slips included, plus extra slips and moorage available for purchase. This one-of-a-kind property offers everything you need for the ultimate West Coast lifestyle—a true Vancouver Island paradise!
Features & amenities
- Dining/Living Combo
- Cul-De-Sac
- Irregular Lot
- Marina Nearby
- Quiet Area
- Recreation Nearby
- Rural Setting
Additional details
- MLS® # 1014420
- Type Residential
- Subtype Single Family Residence
Neighbourhood
A quick look into the surrounding area. If you're interested in learning more about the area, get in touch.
Mortgage calculator
more about this property? Request information
- 29 Haggard Cove
- $599,900
- 4 bedrooms
- 3 bathrooms
- 1,920 sqft